ミライエ

原町区空き家
床材に栗の木を使用するこだわり‼自分時間にゆとりが欲しい方におススメ(原町区陣ヶ崎)

売却: 3,700万円 程度

物件番号: 2025ー家438

おすすめポイント

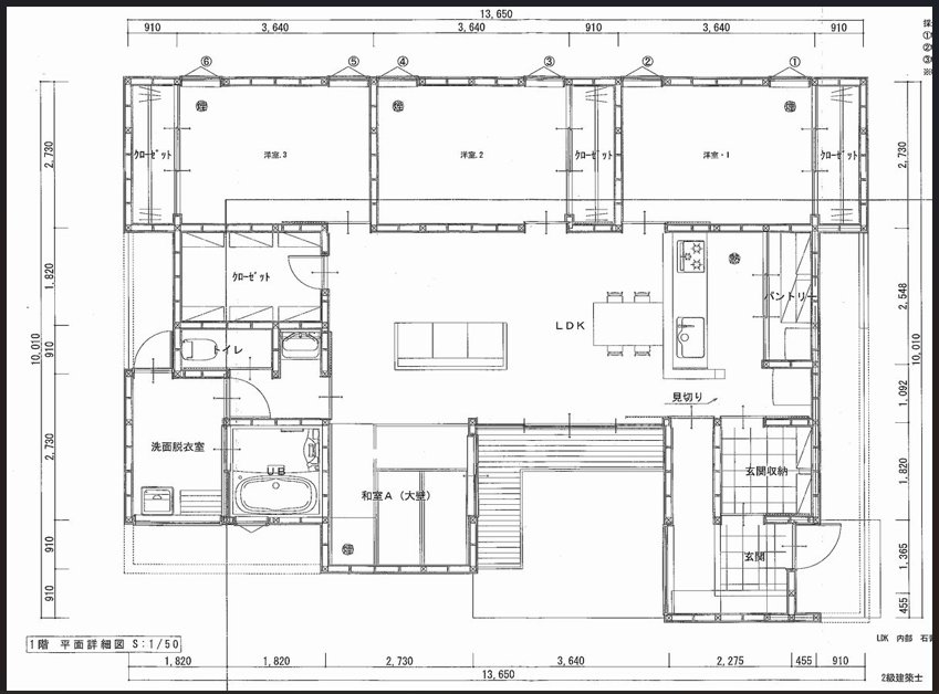
洋室3室、リビング、4.5帖の和室とプライベート感もありながら自分スタイルを大切にしたい方、自分時間にゆとりが欲しい方におススメです。
リビングと洋室1室にはサーフボードも飾れるスペースあり!
敷地内には物置もあり、北泉良さを最大限に活かせるお家になっております。

物件の詳細

建物
物件種別
空き家
取引種別
売却
間取り
4LDK
リビングダイニングキッチン×1、洋室×3、和室×1
建物面積
104.34㎡ (1F: 104.34㎡)
建物構造
木造
住宅種別
専用住宅
築年
2022年
未使用年
2022年〜
土地
土地面積
498.13
現況
建物付
用途地域
用途地域選択地域
土地権利
所有権
接道
一方 あり
担当業者
有限会社サン・ホーム
備考
敷地内には物置あり

リフォーム・補修

補修の要否
補修不用

設備の状況

電気
配線済
水道
上水道
下水道
浄化槽
ガス
プロパン
トイレ
水洗 (洋式)
風呂
電気
駐車場
あり
庭ほか
あり

特徴的な設備

    • 太陽光あり(調査中)

    この物件の所在地

    南相馬市原町区陣ヶ崎

    Loading...

    周辺環境

    小学校
    南相馬市立原町第三小学校 3.3㎞
    中学校
    南相馬市立原町第一中学校 2.7㎞
    最寄り駅
    原ノ町駅 4.5㎞

    情報提供日 : 2025年10月27日 / 物件登録番号 : 2025ー家438