ミライエ

原町区空き家
昭和を感じる手入れされてきた和風家屋(原町区本陣前二丁目)

売却: 700万円 程度

物件番号: 2025-家477

おすすめポイント

キッチン、掘りごたつ、畳、障子、昭和を感じるお家です。
住みやすい立地にあり、少し手を加えて住みやすく。
リフォームもご相談下さい。

物件の詳細

建物
物件種別
空き家
取引種別
売却
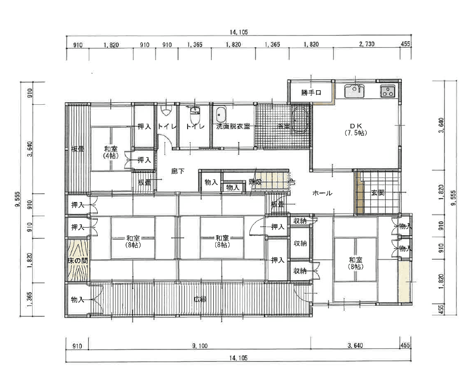
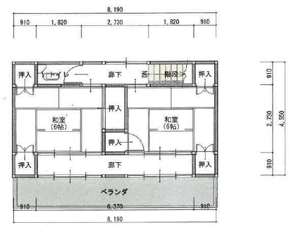
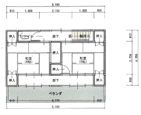
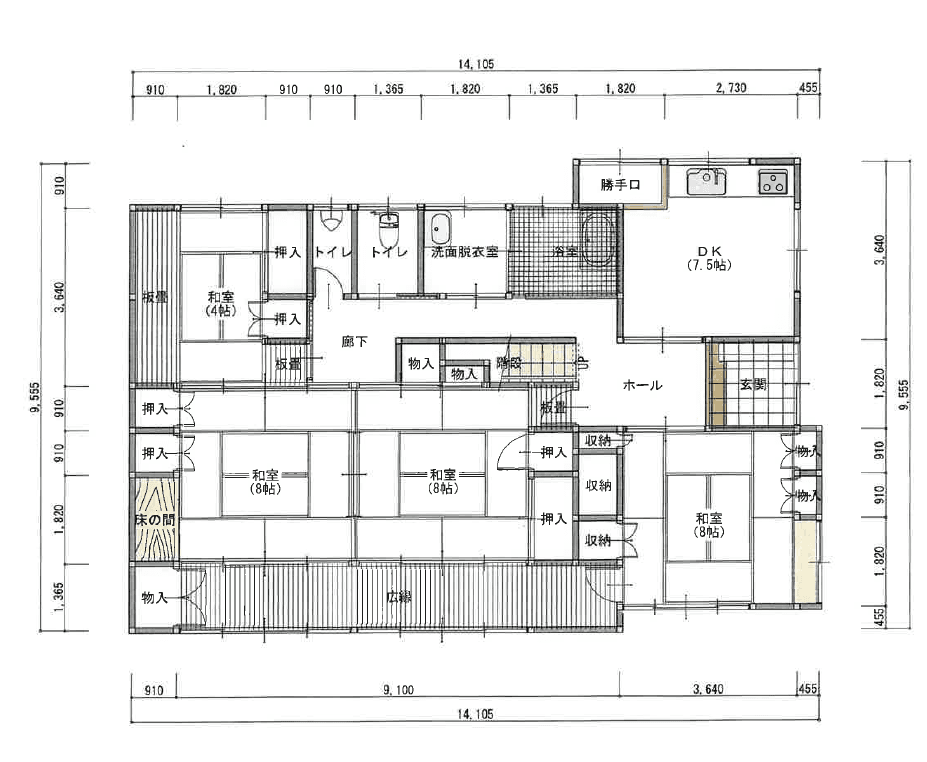
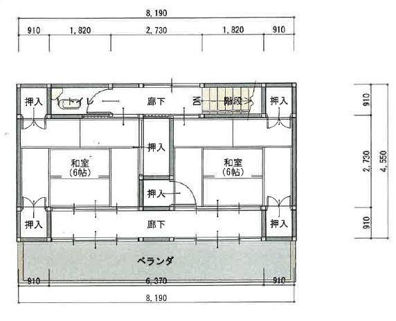
間取り
6DK    
ダイニングキッチン7.5帖、和室8帖×3、6帖×2、4帖×1
建物面積
159.33㎡ (1F: 122.07㎡、 2F: 37.26㎡)
建物構造
木造
住宅種別
専用住宅
築年
昭和59年9月
未使用年
土地
土地面積
341.08
現況
建物付
用途地域
準工業地域
土地権利
所有権
接道
一方 あり
担当業者
小谷津工務店
備考
付属建物(車庫物置)28.68㎡

リフォーム・補修

補修の要否
多少必要 (利用者負担)

設備の状況

電気
配線済
水道
上水道
下水道
下水
ガス
プロパン
トイレ
水洗 (洋式)
風呂
灯油
駐車場
1台
庭ほか
あり

特徴的な設備

    この物件の所在地

    南相馬市原町区本陣前二丁目

    Loading...

    周辺環境

    小学校
    原町第三小学校(1.2㎞)
    中学校
    原町第一中学校(1.2㎞)
    最寄り駅
    原ノ町駅 3.2㎞

    情報提供日 : 2026年4月1日 / 物件登録番号 : 2025-家477