ミライエ

原町区店舗事務所倉庫・工場
板金屋さん跡地 事務所あり 駐車場広々!(原町区大木戸字南原)

賃貸: 20万円/月 程度

物件番号: 2025-工006

おすすめポイント

臨機応変にいろいろ相談できると思います。
倉庫、事務所、工場でお探しの方、ぜひお問い合わせ下さい♪

物件の詳細

建物
物件種別
店舗事務所倉庫・工場
取引種別
賃貸
間取り

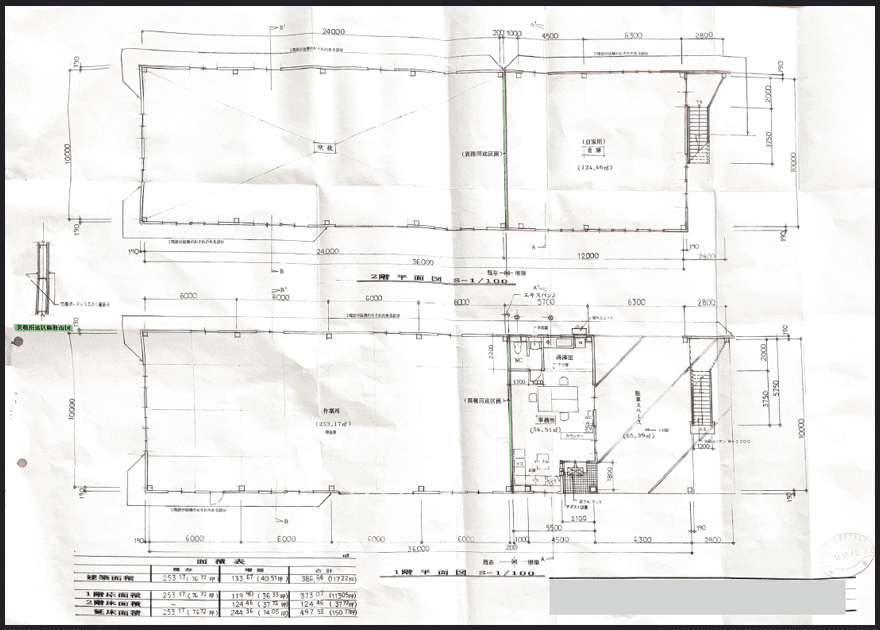
建物面積
497.53㎡ (1F: 373.07㎡、 2F: 124.46㎡)
建物構造
鉄骨造
住宅種別
その他
築年
1994年
未使用年
2025年〜
土地
土地面積
1000
現況
建物付
用途地域
無指定地域
土地権利
所有権
接道
角地
担当業者
西内工務店
備考
2025年10月から賃貸OK! 倉庫部分賃貸可 その他、詳細はお問合せください。

リフォーム・補修

補修の要否
補修不用

設備の状況

電気
配線済
水道
上水道
下水道
浄化槽
ガス
なし
トイレ
水洗 (洋式)
風呂
なし
駐車場
10台
庭ほか
なし

特徴的な設備

    この物件の所在地

    南相馬市原町区大木戸字南原

    Loading...

    周辺環境

    最寄り駅
    原ノ町駅 3.9㎞

    情報提供日 : 2026年3月6日 / 物件登録番号 : 2025-工006