ミライエ

原町区空き家
広々とした敷地。住まいにも事業用にも。活用を見出せる4DKの平屋(原町区上渋佐字原田)

売却: 2,000万円 程度

物件番号: 2025-家474

おすすめポイント

敷地が広いので、なにか事業を始めるも良し!のびのびと暮らすのも良し!
アイディア次第で、可能性が広がる物件です。
※中の写真は準備中です。

物件の詳細

建物
物件種別
空き家
取引種別
売却
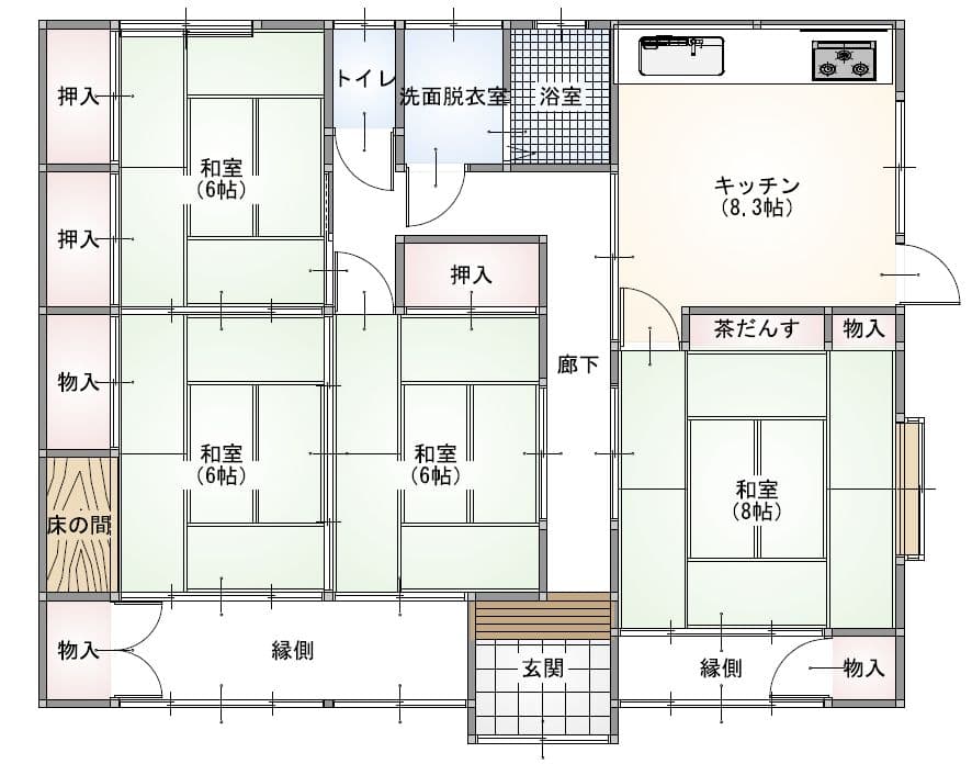
間取り
4DK
和室6帖×3・8帖、台所
建物面積
95.86㎡ (1F: 95.86㎡)
建物構造
木造
住宅種別
専用住宅
築年
1992年
未使用年
2020年〜
土地
土地面積
1766
現況
建物付
用途地域
工業地域
土地権利
所有権
接道
一方
担当業者
サン・ホーム
備考

リフォーム・補修

補修の要否
補修不用
エアコンあり 動作未確認。
リフォーム履歴
リフォーム歴有り
・便器取替え
・トイレ床壁クロス張替え

設備の状況

電気
配線済
水道
上水道
下水道
下水
ガス
プロパン
トイレ
水洗 (洋式)
風呂
灯油
駐車場
敷地内に確保可
庭ほか
あり

特徴的な設備

    • 敷地内に無線塔の支線基礎有り。 現状有姿で引き渡し希望。

    この物件の所在地

    南相馬市原町区上渋佐字原田

    Loading...

    周辺環境

    小学校
    原町第一小学校 2.9㎞
    中学校
    原町第二中学校 900m
    最寄り駅
    原ノ町駅 2.1㎞

    情報提供日 : 2026年2月2日 / 物件登録番号 : 2025-家474