ミライエ

原町区空き家
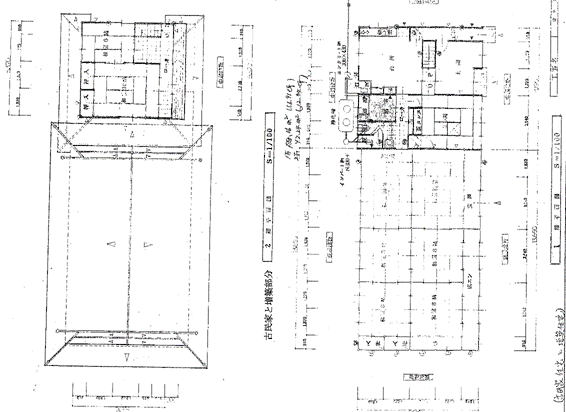
築150年。庭園も蔵も畑も威厳もある。これぞ日本の家。(原町区信田沢字原)

売却: 1,580万円 程度

物件番号: 2024ー家283

おすすめポイント

昔ながらの開放的な間取り。農地、納屋があり、隣近所とも距離があります。
広いお家、広いお庭で何しよう?考えるだけでわくわくする物件です。

物件の詳細

建物
物件種別
空き家
取引種別
売却
間取り
9DK+土間+3K(離れ)
和室8畳×5・10畳・12畳×2・6畳、ダイニングキッチン、土間  離れ:和室8畳×3・キッチン2.6畳
建物面積
230.40㎡ (1F: 188.16㎡、 2F: 42.24㎡)
建物構造
木造
住宅種別
専用住宅
築年
1895年築
未使用年
2021年〜
土地
土地面積
4657.09
現況
建物付
用途地域
無指定地域
土地権利
所有権
接道
一方 市道
担当業者
有限会社マルシン
備考
売却土地面積4657.09㎡、未登記の建物あり、農地有り、無断農地転用有り、農振区域内の土地有り

リフォーム・補修

補修の要否
多少必要 (利用者負担)
リフォーム履歴
明治28年新築
昭和58年増築
令和3年~空き家になっていますが、手入れをしております。

設備の状況

電気
配線済
水道
上水道
下水道
浄化槽
ガス
プロパン
トイレ
水洗 (洋式)
風呂
その他
駐車場
5台以上
庭ほか
あり

特徴的な設備

    • トイレ男子用別にあり/お風呂:薪/離れ、石倉、納屋有り

    この物件の所在地

    南相馬市原町区信田沢字原

    Loading...

    周辺環境

    小学校
    石神第二小学校1.3㎞
    中学校
    石神中学校2.2㎞
    最寄り駅
    原ノ町駅5.5㎞

    情報提供日 : 2025年12月10日 / 物件登録番号 : 2024ー家283