ミライエ

原町区店舗
原町区駅通り ロードサイドの店舗(原町区栄町)

賃貸: 15万円/月 程度

物件番号: 登録外物件

おすすめポイント

原ノ町駅から徒歩8分 駅前通りで視認性良好!

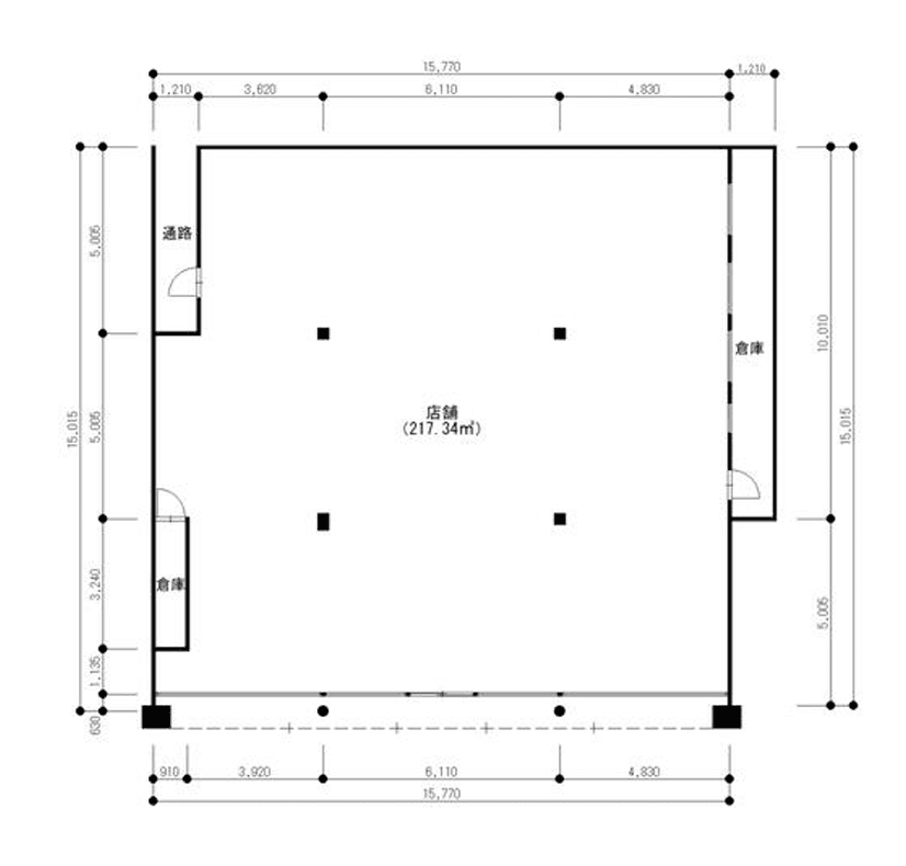
物件の詳細

建物
物件種別
店舗
取引種別
賃貸
間取り

建物面積
217.34㎡ (1F: 217.34㎡)
建物構造
木造
住宅種別
店舗
築年
1967年
未使用年
土地
土地面積
496
現況
建物付
用途地域
商業地域
土地権利
所有権
接道
一方 南12.5m 公道接面17.4m
担当業者
丹治電気工業
備考
使用する業種については使用について都度ご相談ください

リフォーム・補修

補修の要否
多少必要 (利用者負担)
応相談

設備の状況

電気
配線済
水道
上水道
下水道
下水
ガス
その他
トイレ
水洗 (和式)
風呂
その他
駐車場
5台以上
庭ほか
なし

特徴的な設備

    この物件の所在地

    南相馬市原町区栄町三丁目

    Loading...

    周辺環境

    最寄り駅
    原ノ町駅 600m

    情報提供日 : 2025年12月2日 / 物件登録番号 : 登録外物件