ミライエ

原町区空き家
価格変更しました! 日の光が差しこむ明るいL字キッチンのお家(原町区小川町)

売却: 400万円

物件番号: 2024-家370

おすすめポイント

外観は古さを感じるけれど、広い廊下に、フローリングに直された素敵なお部屋。
お庭も手入れをすれば、素敵なお庭に大変身しそうなお家です。
スーパーが近くて、住みやすい住宅地にある物件です!

物件の詳細

建物
物件種別
空き家
取引種別
売却
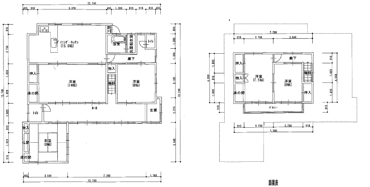
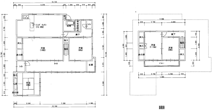
間取り
5LDK
LDK15.5帖 洋室14帖、8帖、7.5帖、6帖 和室8帖
建物面積
152.15㎡ (1F: 119.03㎡、 2F: 33.12㎡)
建物構造
木造
住宅種別
専用住宅
築年
1970年
未使用年
2014年〜
土地
土地面積
220.96
現況
建物付
用途地域
第一種低層住居専用地域
土地権利
所有権
接道
一方 東側
担当業者
西内工務店
備考

リフォーム・補修

補修の要否
多少必要 (利用者負担)
リフォーム歴有り、内容は不明

設備の状況

電気
配線済
水道
上水道
下水道
下水
ガス
都市ガス
トイレ
水洗 (洋式)
風呂
電気
駐車場
3台
庭ほか
あり

特徴的な設備

    この物件の所在地

    南相馬市原町区小川町

    Loading...

    周辺環境

    小学校
    原町第一小学校 1.5㎞
    中学校
    原町第一中学校 2.2㎞
    最寄り駅
    原ノ町駅 2.2㎞

    情報提供日 : 2026年5月22日 / 物件登録番号 : 2024-家370